1105 Clay Avenue
Burlington, Ontario
This is a multi-tenant, one-storey property that is located in the Northgate Business Park. The building is comprised of 80% industrial and 20% office space. The state-of-the-art building offers 24 ft ceiling heights, nine truck-level doors and one drive-in door. The property lies on a 4.60-acre site, conveniently located close to the QEW within Burlington’s industrial sector.
1105 Clay Avenue
Burlington, Ontario
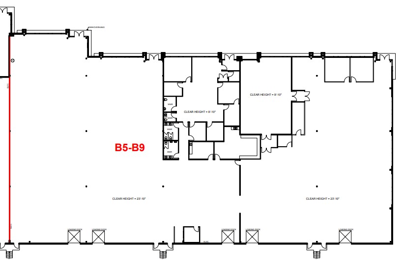
This is a multi-tenant, one-storey property that is located in the Northgate Business Park. The building is comprised of 80% industrial and 20% office space. The state-of-the-art building offers 24 ft ceiling heights, nine truck-level doors and one drive-in door. The property lies on a 4.60-acre site, conveniently located close to the QEW within Burlington’s industrial sector.









